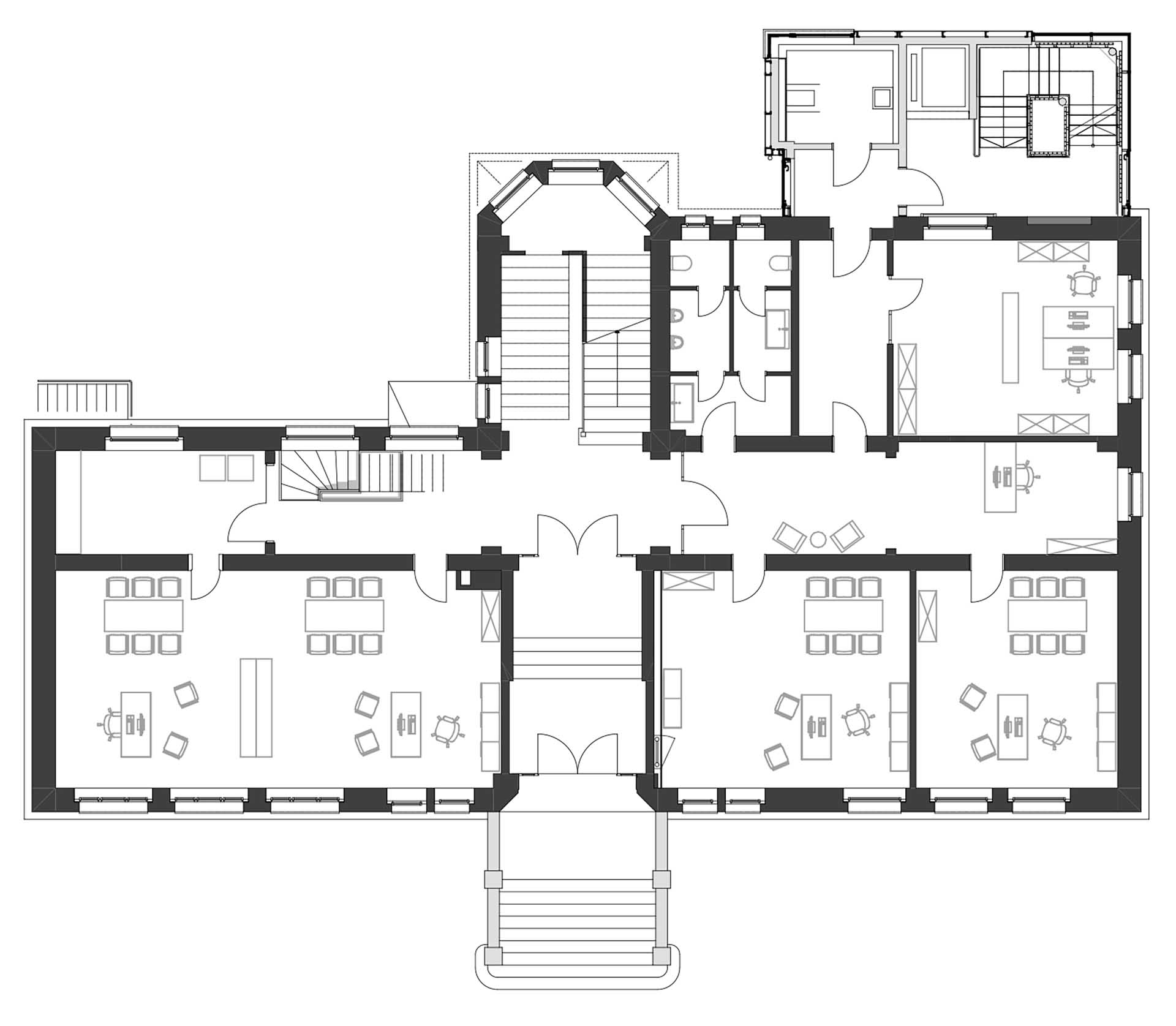
Architektur Wettbewerb Stadt Essen 2025 - Historisches Rathaus Essen Bredeney

nächstes Projekt

nach oben
Modus